広島の「I・Mエステート株式会社」で取り扱っている物件の詳細をご紹介いたします。不動産売却・任意売却・買取なら当社にお任せください。

物件紹介

I・Mエステートで取り扱っている物件の詳細

主に広島市を中心とする広島県内で、不動産売買・任意売却を扱う「I・Mエステート株式会社」。当社では、一戸建てやマンションだけでなく、ご自宅などを新たに建築するための土地も取り扱っております。

お客様のご希望に耳を傾け、ご満足いただけるお取引となるよう努めておりますので、どうぞお気軽にご希望をお聞かせください。こちらでは、当社で取り扱っている物件の詳細をご紹介いたします。

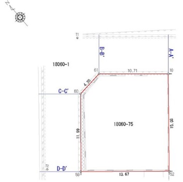
広小坪2丁目 土地

  • temp-thumb
  • temp-thumb
  • temp-thumb
  • temp-thumb
  • temp-thumb
  • temp-thumb
  • temp-thumb
  • temp-thumb

※表は左右にスクロールして確認することができます。

所在地 価格
交通
その他費用
土地面積 現況
土地権利 建築条件
地目 接道状況
建ぺい率 容積率
用途地域 都市計画
国土法届出要否
備考 こちらの物件はおかげさまで成約となりました。ありがとうございました。
引渡時期 取引態様
更新日 次回更新予定日
地図

大手に負けないサービスを、よりスピーディに 当社が選ばれる理由はこちら

不動産売却に関することなら、何でもお尋ねください お問い合わせはこちら

不動産についてお悩みの方は、まずはこちらをご覧ください。

I・Mエステート株式会社が選ばれる理由

UP

〒733-0003 広島市西区三篠町1丁目1番10号

友だち追加

tel:082-555-2345 営業時間:9:30~19:00 定休日:水曜日(※お急ぎの方は上記時間外でも承りますのでご連絡ください。)

Copyrighit © imestate.com All righit Reserved.

UP

友だち追加 内覧や査定など公式LINEでもご相談可能です!

0825552345 082-555-2345
メールでのお問い合わせはこちら メールでのお問い合わせ